Große Gewerbefläche im EG eines gepflegten Wohn- und Geschäftshaus in zentraler Geschäftslage für Ihr Business provisionsfrei direkt vom Eigentümer mieten.
Annaberger Straße 165
Eckdaten
Immobilienart:
Wohn- und Geschäftshaus
Gewerbefläche:
bis zu 500 m²
Standort
Annaberger Str. 165, Chemnitz
Baujahr:
1996
Kurz & knapp
Lagebeschreibung
Die Gewerbeeinheit befindet sich verkehrsgünstig an der B95 in Chemnitz. Dank seiner zentralen Lage ist das Objekt sowohl für eine Büronutzung als auch für Gewerbebetriebe ideal. Die Nähe zur Hauptverkehrsstraße ermöglicht eine gute Erreichbarkeit für Kunden und Mitarbeiter. Unmittelbar vor dem Gebäude befindet sich eine Straßenbahn-Haltestelle, die eine bequeme Anbindung an den öffentlichen Nahverkehr gewährleistet.
Die Autobahn A72 ist in ca. 10 Minuten zu erreichen, während die Autobahn A4 in ca. 25 Minuten erreichbar ist. Die Städte Dresden und Leipzig sind jeweils in etwa einer Stunde erreichbar, was eine gute Anbindung an größere Wirtschaftszentren bietet. Darüber hinaus ist die Grenze zu Tschechien in ca. 1,5 Stunden Fahrtzeit erreichbar.
Ausreichend Parkplätze im Hinterhof stehen zur Verfügung.
Infrastruktur & Umgebung
Die Gewerbeeinheit profitiert von einer hervorragenden Infrastruktur. In ca. 100 m Entfernung befinden sich ausreichend Einkaufsmöglichkeiten, die den täglichen Bedarf abdecken. Für Familien sind eine Grundschule und ein Kindergarten jeweils nur 50 m entfernt, was eine gute Erreichbarkeit für Eltern ermöglicht.
Naherholungsgebiet: Nach einem ca. 10-minütigen Fußweg erreichen Sie den Stadtpark, ein beliebtes Naherholungsgebiet. Hier können Sie sich in grüner Umgebung entspannen und neue Energie tanken.
Bildungseinrichtungen: Die Technische Universität Chemnitz ist fußläufig in nur 10 Minuten erreichbar. Dies ermöglicht eine enge Zusammenarbeit mit der Universität und den Zugang zu einem Pool talentierter Studenten.
Umgebung: In unmittelbarer Nähe des Objekts befinden sich mehrere kleinere Gewerbebetriebe aus verschiedenen Branchen, darunter KFZ, Gesundheit, Nahrungsmittel und Handwerk. Diese Nachbarschaft bietet Synergieeffekte und Möglichkeiten für Kooperationen.
Mietkonditionen
- Kaltmiete: Ab 7 € pro m²
- Vorauszahlung für Nebenkosten: 2,50 € pro m²
- Stellplatzkosten: 30 € pro Stellplatz
- Nutzung der vorhandenen Möbel: 1 € pro m² Mietfläche
- Mietkaution: 6 Monatsmieten
Zusätzlich bieten wir Ihnen die Möglichkeit, die Flächen individuell zu teilen und umzugestalten, um Co-Working-Spaces oder bedarfsgerechte Flächen für Startups zu schaffen.
Kontakt
Für weitere Informationen oder eine Besichtigung kontaktieren Sie uns gerne.
Tel. 0371 2732115
E-Mail: vermietung@anna165.de
Ansprechpartner: Oliver Sandner
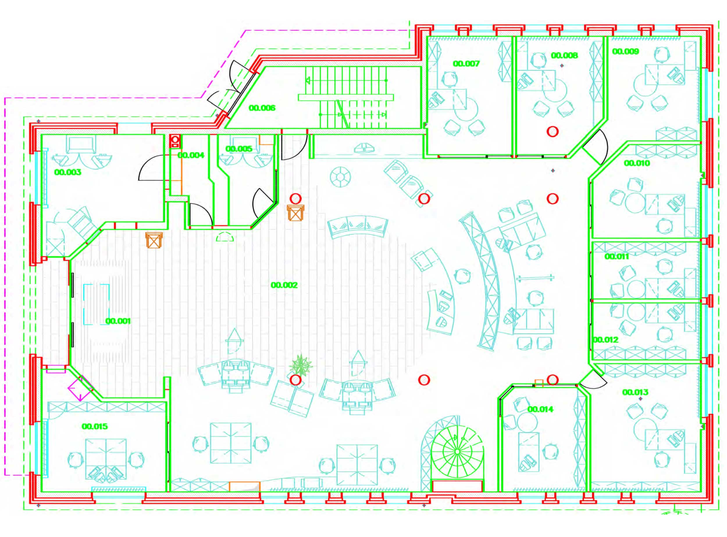
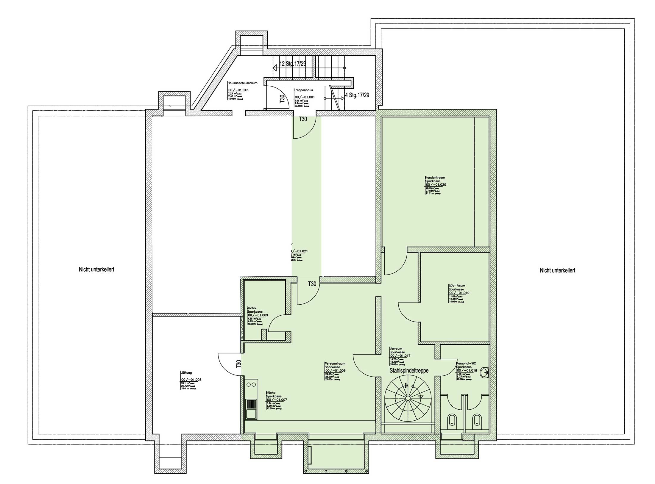
Objektbeschreibung
- Objektzustand: gepflegt
- ehemalige Bankfiliale mit vielseitigen Nutzungsmöglichkeiten
- Gewerbeeinheit über 2 Etagen (EG + KG)
- ebenerdiger Zugang ins EG
- Toiletten im KG
- Einrichtung/ Einbauten kann übernommen werden
weitere Fotos
Zufahrt Parkplätze
Zufahrt Parkplätze
Gebäuderückseite mit Parkplätzen
Parkplätze
Gebäuderückseite mit Parkplätzen
Parkmöglichkeiten
Im Hinterhof des Objekts stehen ausreichend Parkplätze zur Verfügung, sodass Kunden und Mitarbeiter bequem parken können.












